태안발전본부 후생동
2024. 8. 7. 16:28ㆍWORKS
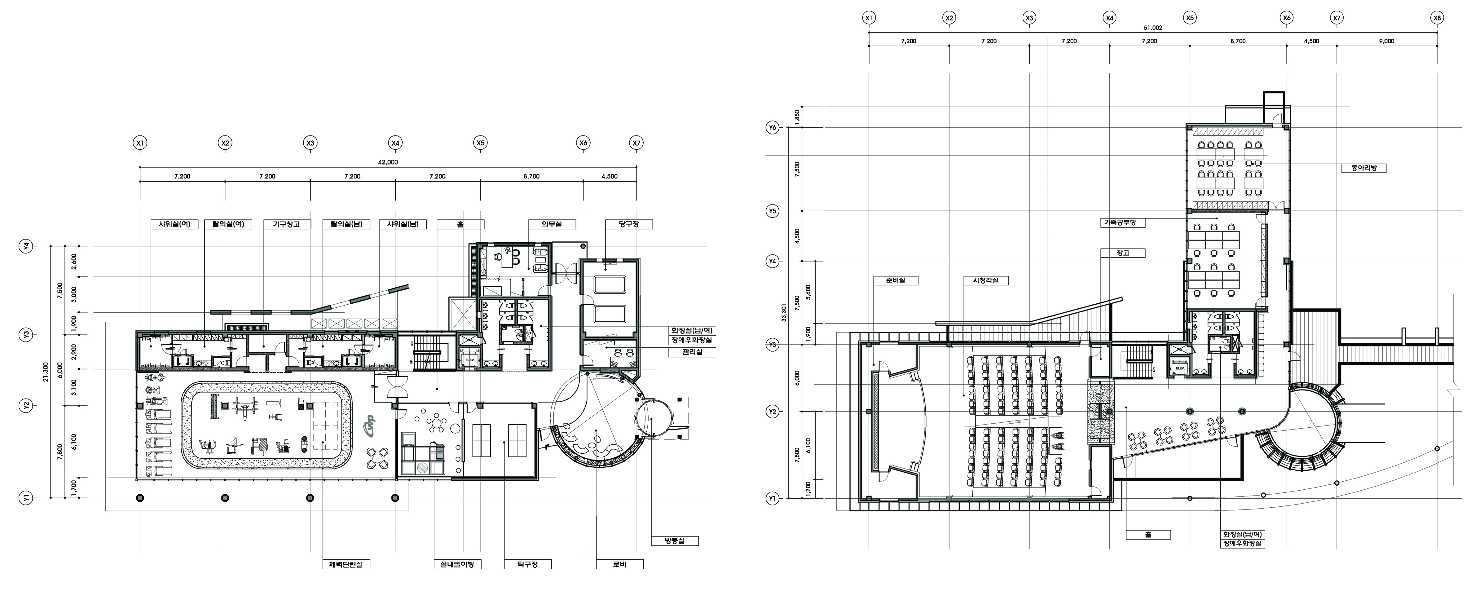
태안발전본부 후생동내 공용홀 및 스포츠센터, 시청각실 인테리어 설계




'WORKS' 카테고리의 다른 글
| 힐리언스 테라피 (0) | 2024.08.07 |
|---|---|
| 홍대 와인바 (0) | 2024.08.07 |
| 현대자동차 사옥 (0) | 2024.08.07 |
| 성주CC 클럽하우스 (0) | 2024.08.07 |
| 천안시청사 신축공사 (0) | 2024.08.07 |
2024. 8. 7. 16:28ㆍWORKS
태안발전본부 후생동내 공용홀 및 스포츠센터, 시청각실 인테리어 설계




| 힐리언스 테라피 (0) | 2024.08.07 |
|---|---|
| 홍대 와인바 (0) | 2024.08.07 |
| 현대자동차 사옥 (0) | 2024.08.07 |
| 성주CC 클럽하우스 (0) | 2024.08.07 |
| 천안시청사 신축공사 (0) | 2024.08.07 |